更新情報INFORMATION
|
|
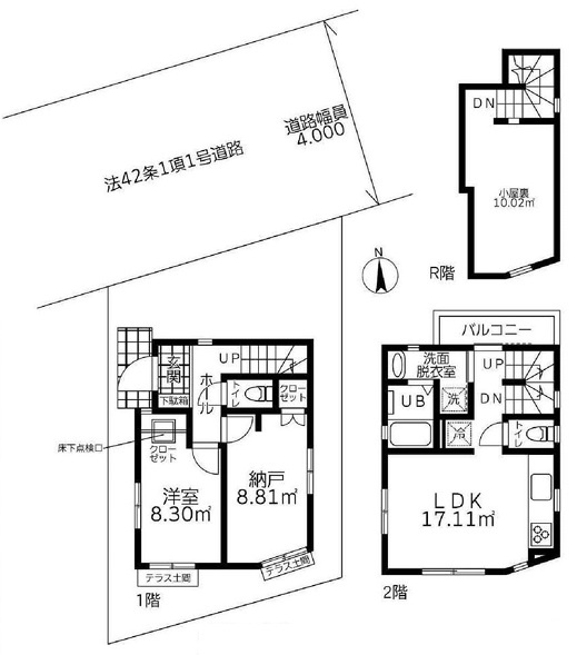
◎駅近物件◎泉区新橋町 新築戸建 4LDK!
■物件紹介■
相鉄いずみ野線『弥生台駅』から徒歩 7 分! 泉区 新橋町の新築戸建 4LDK! 土地面積:125.41 ㎡ 建物面積: 91.28 ㎡ 価格詳細:詳細はこちら! ◎駅近で通勤通学に便利♪ ◎お庭付き ◎カースペース2台分! 他にも、ケイオー不動産公式Instagramでは、内見動画を投稿しております! また、ケイオー不動産公式YouTubeやケイオー不動産公式TikTokにも投稿しておりますので、是非ご覧ください! いつでも内見お待ちしております! |
|
|---|---|---|
|
|
◎子育て環境充実◎戸塚区深谷町 新築戸建 4LDK!
■物件紹介■
横浜市営地下鉄ブルーライン『下飯田駅』からバス10 分! バス停『深谷消防出張所西側』徒歩 8 分! 戸塚区 深谷町の新築戸建 4LDK! 土地面積:100.76 ㎡ 建物面積: 96.46 ㎡ 価格:詳細はこちら! ◎ 全居室収納完備 ◎南向きバルコニー☀ ◎ S.I.Cあり ◎ 小学校徒歩圏内 他にも、ケイオー不動産公式Instagramでは、内見動画を投稿しております! また、ケイオー不動産公式YouTubeやケイオー不動産公式TikTokにも投稿しておりますので是非ご覧ください♪ いつでも内見お待ちしております! |
|
|
|
駅近・平坦なフリープラン住宅 全2区画
■物件紹介■
横浜市営地下鉄ブルーライン「中田駅」から徒歩8分! 泉区 中田東2丁目の期間限定フリープラン住宅 ! |
|
|
|
並列3台分のカースペース完備の贅沢駅近物件♪
■物件紹介■
横浜市営地下鉄ブルーライン「立場駅」から徒歩9分! 泉区 和泉中央南2丁目の新築戸建 4LDK! 11月までの期間限定で、 間取り&色合い自由なフリープランの号棟もあります! 土地面積:116.44~125.21㎡ 建物面積: 93.00~ 98.12㎡ 価格詳細:詳細はこちら! ◎間取りや色合い自由のフリープラン対応!(号棟による) ◎寒い日も大丈夫!床暖房付き! ◎スーパー、コンビニは徒歩10分圏内で住環境良好! ◎フルフラットのペニンシュラキッチンで毎日のお料理も楽しくなる♪ 他にも、ケイオー不動産公式Instagramでは、内見動画を投稿しております! また、ケイオー不動産公式YouTubeやケイオー不動産公式TikTokにも投稿しておりますので是非ご覧ください! いつでも内見お待ちしております♪ |
|
|
|
◆令和8年6月完成予定!藤沢市高倉 新築戸建 4LDK◆
■物件紹介■ 小田急江ノ島線『湘南台駅』からバスで 6分! 藤沢市高倉の新築戸建 4LDK 土地面積:120.19㎡ 建物面積: 95.23㎡ 価格詳細:詳しくはこちら! 〇コンビニ徒歩圏内 〇すべてのお部屋に収納スペース 〇南向きバルコニー☀ 〇カースペース有り 他にも、ケイオー不動産公式Instagramでは、内見動画を投稿しております! また、ケイオー不動産公式YouTubeやケイオー不動産公式TikTokにも投稿しておりますので是非ご覧ください! いつでも内見お待ちしております♪ |
売買新着物件NEW
をもっと見る
よく見られている物件POPULAR
-
新築一戸建
◆価格改定◆完成済み◆和泉中央北6丁目 新築戸建 3680万円
横浜市泉区和泉中央北6丁目
3LDK (79.49㎡)
3,680万円
新築
-
中古一戸建
◆リフォーム済み◆和泉中央南5丁目 中古戸建 3690万円
横浜市泉区和泉中央南5丁目
2SLDK (81.82㎡)
3,690万円
-
新築一戸建
泉区新橋町 新築戸建 3080万円
横浜市泉区新橋町
2LDK (68.76㎡)
3,080万円
新築
-
中古一戸建
汲沢3丁目 中古戸建 1380万円
横浜市戸塚区汲沢3丁目
4DK (63.20㎡)
1,380万円
-
新築一戸建
泉区中田西4丁目 新築戸建 4699万円
横浜市泉区中田西4丁目
3LDK (104.57㎡)
4,699万円
新築
お客様の声CUSTOMER
-
- K様
- 初めての内見でしたが、色々と知識が豊富で1件目で物件の購入を決めました。その後も色々と不明な点等も丁寧にご回答頂き、とても信頼出来る不動産屋さんで購入出来て感謝しています。是非おすすめします。
-
- M様
- 素敵な担当者・家に巡り合えてよかったです。
たまたま見かけた看板を見て、ご連絡させて頂きすぐに契約させてもらいました。
色々な細かい点まで対応して頂き、ありがとうございました。
-
- K.M様
- 松尾さんのすごく丁寧な対応により、無事完成する事が出来ました。
何もわからない所からSTARTしましたが、安心してむかえる事が出来ました。
本当にありがとうございました。
-
- W様
- お世話になりました!!
とても親身にこちらの質問にこたえてくださり、
不安なく家を購入することができました。
本当にありがとうございました。
-
- O様
- とても満足です!
親身になってくれたので安心して全てお任せすることができました。
ありがとうございました。
「どこよりも安心で信頼もあり、実力のある優しい不動産屋を目指しております。」
ケイオー不動産株式会社は泉区・戸塚区を中心に活動しております。
皆さまが不動産探しをされる際、しつこい営業をされて怖い思いをした方、不動産会社に行ってはみたけど
住宅ローンの審査が通らなくて断られた方、ゆっくりと時間をかけて不動産探しをしたい方、
まずは試しに一度店舗へお越し下さい。未公開物件を含め、地域No.1の不動産情報がございますので、あなたにぴったりの不動産をご紹介します。
スタッフ一同、お客様の目線に立ってメリットはもちろん、デメリットも隠さずお伝えするよう徹底しておりますので、
不動産の押し付け等一切ありません。心ある対応をする様、精一杯心がけております。
皆さまに「買って良かった」と言って頂けるよう全力でサポートしていきます。














