◆完成済み◆白百合2丁目 新築戸建 2880万円

2,880万円

神奈川県横浜市泉区白百合2丁目

ブルーライン「中田」駅徒歩14分

相鉄いずみ野線「弥生台」駅バス5分神奈川中央交通「白百合台団地」停歩9分

東海道本線「戸塚」駅バス13分神奈川中央交通「白百合台団地」停歩8分

価格
2,880万円
間取り
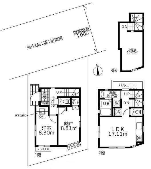
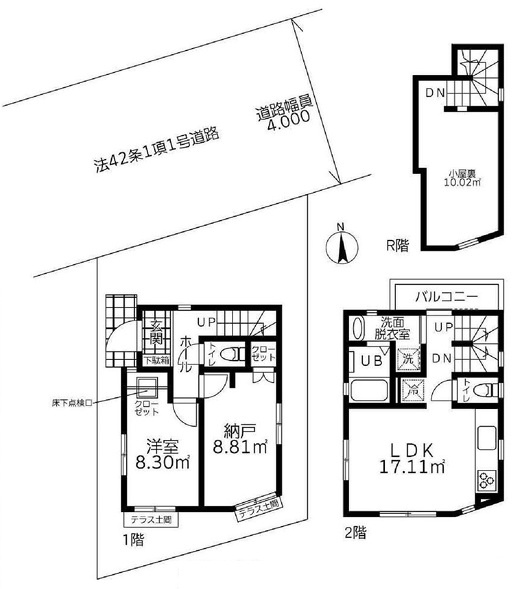
1SLDK
土地面積
51.27㎡
所在地
神奈川県横浜市泉区白百合2丁目
交通

ブルーライン中田」駅 徒歩14分

相鉄いずみ野線弥生台」駅 バス5分 神奈川中央交通「白百合台団地」 停歩9分

東海道本線戸塚」駅 バス13分 神奈川中央交通「白百合台団地」 停歩8分

建物面積
51.23㎡
築年月
2025年4月(新築)

セールスポイント

利便性の良い全居室収納スペースはとても魅力溢れる収納です。駅まで徒歩14分でアクセス可能です。トイレが2ヶ所にあるので複数人でも快適に暮らせます。室内の行動拠点であるリビングに階段を配置した間取りとなります。不動産購入というのは人生の中でも大きなお買い物です。失敗しないためにも、専門知識に長けたケイオー不動産のスタッフまでご連絡ください。

ポイント

LDK15帖以上 浴室に窓 全居室収納 リビング階段 3口以上コンロ

担当者のコメント

大島 隆

岡津田向公園まで徒歩4分と近いです。よく家で料理をするという方に嬉しいシステムキッチン付きの物件。トイレが2ヶ所にあるので複数人でも快適に暮らせます。階段をリビングに設けた、オシャレな室内が魅力となっています。地域に特化したケイオー不動産が住まい探しをサポートします。まずはお気軽に045-392-9950よりご連絡ください。

基本情報

販売戸数
-
総戸数
-
間取り / 詳細
1SLDK
向き
-
建物面積(坪数)
51.23㎡(15.49坪)
土地面積(坪数)
51.27㎡(15.50坪)
建ぺい率 /
容積率
-/-
築年月
2025年4月(新築)
土地権利
所有権
土地
(敷金 / 保証金)
- / -
建物構造
木造 / 2階建
傾斜地部分面積
-
路地状敷地
-
私道負担面積
-
セットバック
高圧線下面積
-
施工会社
-
用途地域
-
地目 / 地勢
- / -
接道状況
-
国土法届出要否
不要
都市計画
-
総区画数 /
販売区画数
-/-
現況
完成済み
その他
法令上の制限
-
取引態様
仲介
引渡し
即時
取引条件の
有効期限
2025年11月24日

設備条件

設備条件
  • バルコニー / 都市ガス / 公営水道 / 公共下水 / コンロ2口以上 / システムキッチン / コンロ3口 / トイレ2ヶ所
設備(その他)
    -

その他

物件番号
95998923
管理コード
-
建築確認番号
-
情報更新日
2025年11月10日
次回更新予定日
2025年11月24日
備考
トイレが2ヶ所にあるので複数人でも快適に暮らせます。お客様の訪問時に全居室収納スペースがあると活躍します。駅まで徒歩14分でアクセス可能です。階段をリビングに設けた、オシャレな室内が魅力となっています。ケイオー不動産では横浜市泉区にある一戸建てをご紹介しております。まずは045-392-9950からお電話下さい。

周辺施設

  • 岡津田向公園の画像

    公園

    岡津田向公園

    254m(4分)

  • しらゆり公園の画像

    公園

    しらゆり公園

    497m(7分)

  • 横浜市立領家中学校の画像

    中学校

    横浜市立領家中学校

    554m(7分)

  • 白百合愛児園の画像

    保育園

    白百合愛児園

    575m(8分)

  • ユーコープ 中田店の画像

    スーパー

    ユーコープ 中田店

    699m(9分)

  • ファミリーマート 戸塚鳥が丘店の画像

    コンビニエンスストア

    ファミリーマート 戸塚鳥が丘店

    779m(10分)

  • 横浜鳥が丘郵便局の画像

    郵便局

    横浜鳥が丘郵便局

    810m(11分)

  • 横浜市立鳥が丘小学校の画像

    小学校

    横浜市立鳥が丘小学校

    821m(11分)

  • ハックドラッグ中田店の画像

    ドラッグストア

    ハックドラッグ中田店

    840m(11分)

  • Aコープ 中田店の画像

    スーパー

    Aコープ 中田店

    893m(12分)

  • 横浜市泉スポーツセンターの画像

    スポーツ施設

    横浜市泉スポーツセンター

    991m(13分)

  • セイムス 踊場駅前店の画像

    ドラッグストア

    セイムス 踊場駅前店

    1031m(13分)

  • サンドラッグ 山手台店の画像

    ドラッグストア

    サンドラッグ 山手台店

    1032m(13分)

  • 業務スーパー 山手台店の画像

    スーパー

    業務スーパー 山手台店

    1118m(14分)

支払いシミュレーション

月々の支払額
9.6
購入希望物件価格
万円
頭金
万円
金利
%
返済額(ボーナス1回分)
万円
返済期間

※ボーナスは自動で年2回分で計算されます。

近隣の物件

  1. ■二世帯住宅可■岡津町 中古戸建 4380万円

    横浜市泉区岡津町

    5LDK (143.15㎡)

    4,380万円

  2. ◇令和7年9月リフォーム完了予定◇和泉中央北5丁目 中古戸建 6480万円

    横浜市泉区和泉中央北5丁目

    3SLDK (197.74㎡)

    6,480万円

  3. ◇令和7年11月完成予定◇領家4丁目 新築戸建 6280万円

    横浜市泉区領家4丁目

    4LDK (100.19㎡)

    6,280万円

  4. ■令和5年築■中田西4丁目 中古戸建 8980万円

    横浜市泉区中田西4丁目

    3LDK (179.84㎡)

    8,980万円

◆完成済み◆白百合2丁目 新築戸建 2880万円

◆完成済み◆白百合2丁目 新築戸建 2880万円

2,880万円

-

1SLDK(51.23㎡)

お気軽にお問い合わせください

無料お問い合わせ

ケイオー不動産株式会社

045-392-9950

10:00~19:00

(休:第1・3火曜日&水曜日)